Kopfzeile

Hervorragende Lage von Büro samt Lagerhallen, Nähe Flughafen Schwechat!

Lager zum Kauf in Enzersdorf an der Fischa (2431) / Objektnummer: 44

Lager zum Kauf in Enzersdorf an der Fischa (2431) 3.200.000 €

421 m² Bürofläche

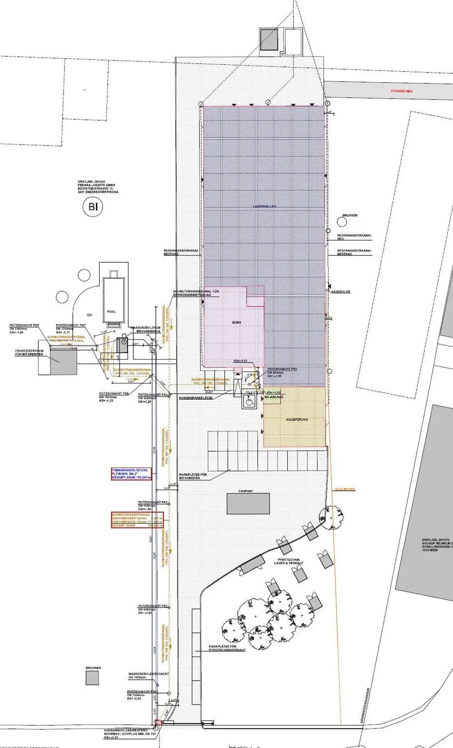
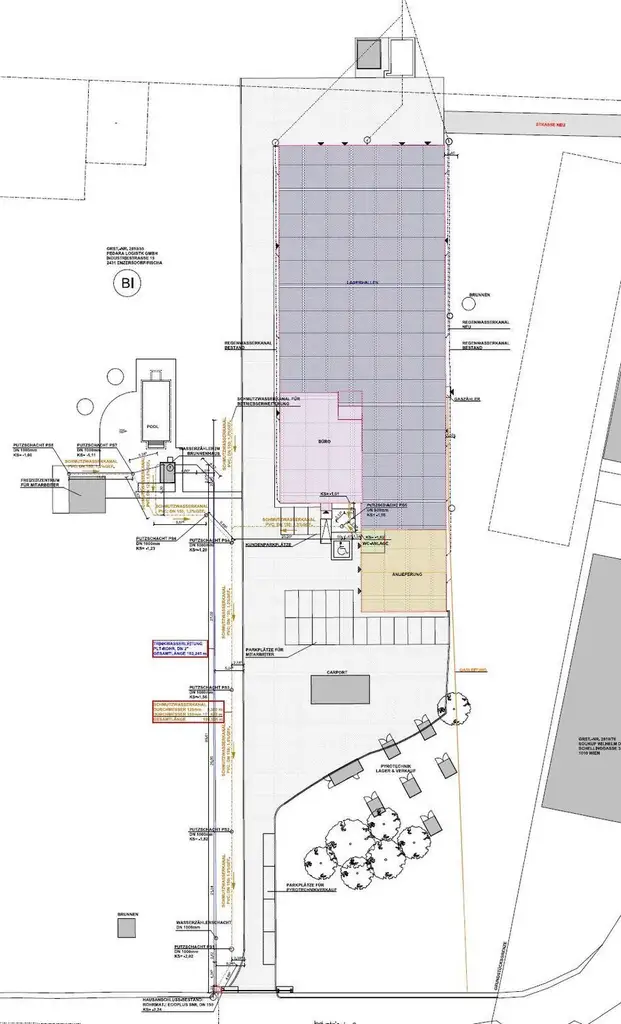
27.700 m² Grundfläche

möbliertSaunaPoolZentralheizungKabel-TV

Hervorragende Lage von Büro samt Lagerhallen, Nähe Flughafen Schwechat!
Erweiterungsmöglichkeit für zusätzliche Hallen gegeben!

Dies befindet sich auf einem ca. 27.700 m² großen Grundstück in Enzersdorf an der Fischa.

Das Bürogebäude umfasst ca. 421 m² auf 2 Ebenen (EG + OG) und  ist  möbliert - bis auf 3 Reservebüros.
Beheizt wird es über eine Gaszentralheizung. Die Büroräume sind teilweise auch klimatisiert.

Hallen und Nebenräume ca. 2000m². Hoher Sicherheitsstandard.

Die Hallen weisen eine den statischen Erfordernissen entsprechende Bodenplatte auf und sind mit Rolltoren ausgestattet.
Sie werden über Heizlüfter beheizt und verfügen über eine Wärmedämmung. Die Hallen sind für Hochregalstapler geeignet.
Es besteht die Möglichkeit für Zubauten (einmal 7.000 m² und nochmals 3.000 m²), die entsprechenden Leerrohre für die Anbindung sind bereits vorhanden.
U- Wert für die Hallen = 0,28 und 0,24; (U-Wert für die Hallen bestand = 0,90 und 4,35)
U-Wert für das Büro = 0,45; (U-Wert für das Büro bestand = 0,45)
U-Wert für den Heizraum = 0,45; (U-Wert für den Heizraum bestand = 4,35)
U-Wert für das Satteldach = 0,19; (U-Wert für das Satteldach bestand = 0,85)

Die Gebäude wurden in den letzten Jahren so umfangreich instandgesetzt, dass diese
bautechnisch einem Neubau entsprechen. Es gibt ein entsprechendes Gutachten.

Ausstattung:
- Zentrale EDV Serveranlage im kompletten Bürogebäude
- Zentrale Brandmeldeanlage für Bürogebäude und Hallenbereich
- Alarm- und Videoüberwachungsanlage im Innen- und Außenbereich (jede Öffnung doppelt gesichert)
- Elektronische Zentralsperranlage mit Chip-Schlüssel
- Elektronische Zeiterfassung (eingebaut in die Sperr-Chip-Schlüssel)

Weiters befindet sich auf dem Grundstück auch ein kleines Blockhaus mit einem Pool (Tiefe 1,9 m, beheizt über eine Luftwärmepumpe) und 4 Brunnen.

Verkehrsanbindung:
Enzersdorf an der Fischa liegt nahe der ostösterreichischen Hauptverkehrswege. Auf der B
60, die Leithastraße, gelangt man in ca. 5 km Richtung Norden nach Fischamend auf die A 4, die Ostautobahn. Richtung Süden erreicht man nach ca. 25 km die A 3, die Südostautobahn.
Die nahe an Enzersdorf an der Fischa vorbeiführende B 10, die Budapester Straße, führt im
Nordwesten nach Schwechat und im Südosten an die Bezirkshauptstadt Bruck an der Leitha.

Infrastruktur:
In Enzersdorf an der Fischa als auch in Schwadorf bei Wien sind zahlreiche infrastrukturelle
Einrichtungen wie zB, Kindergärten, Volksschulen, Neue Mittelschule, Ärzte Apotheken
sowie auch Lebensmittelgeschäfte, und Banken, usw. vorhanden.

Kaufpreis: Euro 3.200.000,--
Das Angebot ist freibleibend und unverbindlich, Irrtum und Fehler vorbehalten.

Für weitere Fragen und/oder einen Besichtigungstermin steht Ihnen gerne Herr Ing. Anton Eibensteiner unter 0699/ 18 88 98 88 oder unter ae@vitales-wohnen.at zur Verfügung.
Wir sind als Doppelmakler tätig, d.h. wir vertreten sowohl Verkäufer als auch Käufer.

Kauf zzgl. Kaufnebenkosten gem. Merkblatt der Fachgruppe der Immobilien- und Vermögenstreuhänder.
Energiedaten: Büro saniert HWB: 34 kWh/m²a; (Büro bestand HWB: 107kWh/m²a)

Energiedaten:
 Energieausweis: liegt vor
 HWB: 34,00

Lage und Verkehrsanbindung

Sonnige Lage, Grünlage, Gewerbegebiet, Industriegebiet, Ebene Lage, Einflugschneise

Entfernungen

Fernbahnhof
100 m

Grundrisse

Lageplan

Inhalt wird geladen
Preise
Kaufpreis
3.200.000,00 €
Provision
3.0% plus 20.0% USt.
Fakten
Objekttyp
Lager
Lagerfläche
2.000 m²
Bürofläche
421 m²
Grundfläche
27.700 m²
Status
verfügbar
Energieeffizienz
Energieausweisart
Energiebedarfsausweis
Endenergiebedarf
34,00 kWh/(m²a)
HWB
34,00 kWh/(m²a)
Anton Eibensteiner