Kopfzeile

Traumhaftes Wohnen am Schlossberg!

Haus zum Kauf in Gaweinstal (2191) / Objektnummer: 113

Haus zum Kauf in Gaweinstal (2191) Preis auf Anfrage

5 Zimmer

2 Badezimmer

250 m² Wohnfläche

250 m² Gesamtfläche

1.368 m² Grundfläche

GarageStellplatzZentralheizungOfenheizungFußbodenheizungKabel-TV

Traumhaftes Wohnen auf höchstem Niveau!
Im wunderschönen Weinviertel Nähe Gaweinstal.
Wenn man die Gemütlichkeit, Extravaganz, Schönheit und technische Ausgereiftheit zusammen fassen müsste, käme man zu folgendem Schluß: Juwel aus dem Weinviertel!
Wer das Besondere liebt, Sinn für historische Werte und Arbeit hat, wird von dieser Immobilie begeistert sein.

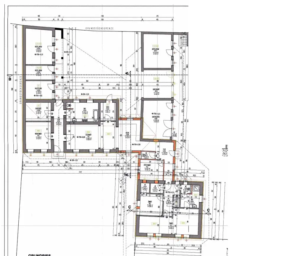
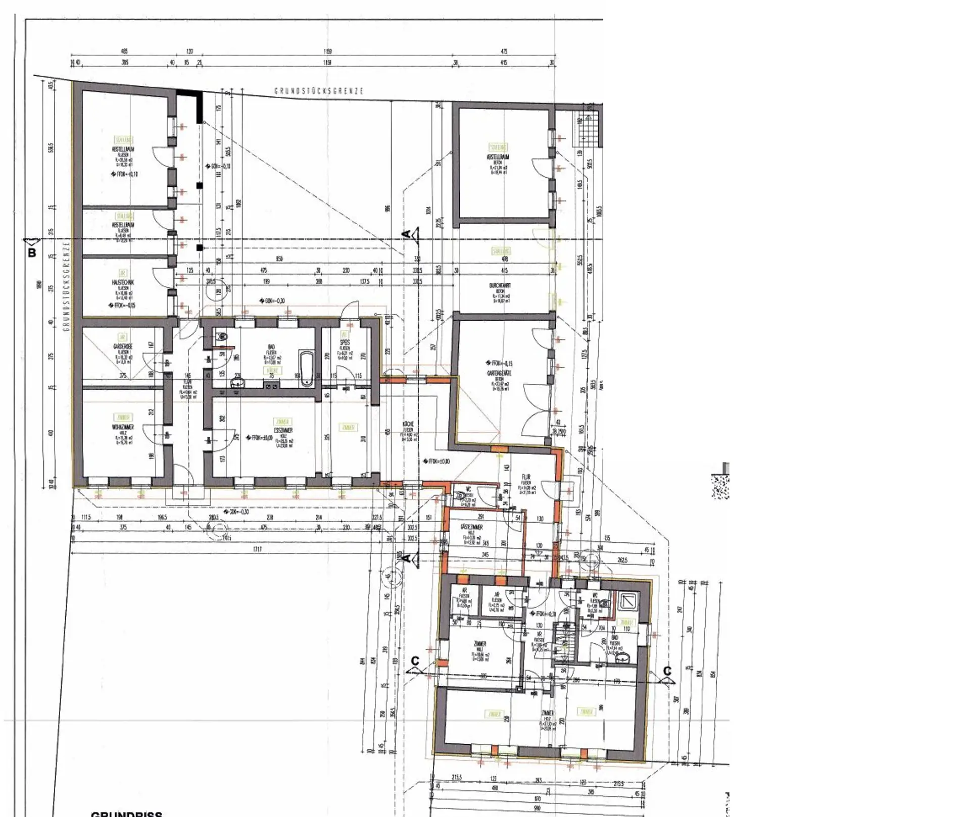
Grundstück: ca. 1.368 m² - siehe Teilungsplan Bauplatz 1
Wohnfläche: ca. 190 m² + ca. 60 m² im Dachgeschoss, welches laut Verkäufer in Vorbereitung für den Ausbau steht.

2 Wohnstuben
3 Schlafzimmer
1 große Küche
2 Bäder (eines mit Wanne, eines mit Dusche) + je ein WC und Bidet
2 Eingangsbereiche, eines mit 5 m Raumhöhe
1 Wirtschafts-/Technikraum
3 Schrankräume (Tischlerarbeit)
1 Speise
1 Abstellraum
1 großer Dachboden, in Vorbereitung zum Ausbau (im Plan grün umrandet)
1 Doppelgarage
2 ausbaufähige, ehemalige Stallungsräume, derzeitig Abstellräume (im Plan gelb markiert)
Zusätzliche Gebäude könnten noch, laut Rücksprache mit der Gemeinde, am Grundstück errichtet werden.

Dieses Anwesen befindet sich in absoluter Ruhelage in Pellendorf (Nähe Schloss Pellendorf). Der größte Teil des Hauses ist laut einem historischen Beauftragten des Landes NÖ ca. 300 Jahre alt und besteht aus einem Haupthaus sowie Nebengebäuden (ursprünglich kleine Stallungen). Auf dem Grundstück befindet sich auch ein großer, neu elektrifizierter Holzstadl, der derzeit als Stauraum für Gartenmöbel, Gartengeräte, Fahrräder, sowie als Abstellplatz für ein Boot und einen Traktor genutzt wird.
Die ehemaligen Stallungen sind für Wohnzwecke (für Hauspersonal, als Gästehaus, Sauna, usw.) ausbaufähig.
Das gesamte Anwesen wurde 2015 professionell und mit viel Liebe zum Detail generalsaniert. Sämtliche Dächer wurden mit neuen Dachstühlen und neuer Dachdeckung (Ziegel) versehen. Das gesamte Haus wurde bestens wärmegedämmt und mit einer Fußbodenheizung ausgestattet, die aus 2 Erdtiefenbohrungen gespeist wird. Zudem sind noch 2 Kaminanschlüsse für Festbrennstoffe vorhanden.
Sämtliche Türen bestehen aus Massivholz (teilweise mehrere hundert Jahre alt, teilweise neu vom Tischler angefertigt), ebenso die Sprossenfenster mit Mehrfachverglasung.
Der Fußboden ist mit Stein (Travertin antik) und Holzbretterdielen verlegt.
Das Haus lässt sich sehr einfach durch aufziehen einer einzigen Wand in 2 Wohneinheiten teilen.
Die Vollholzküche wurde von einem Tischlereibetrieb hergestellt  und mit einem Herd der Firma La Cornue mit 2 Backröhren ausgestattet.
Die Arbeitsplatten in der Küche und die Waschtischauflagen bestehen aus massivem Granit.
Dem Haus wurde im Hinblick auf das historische Alter bei der Renovierung alle Ehre erwiesen. So wurde z.B. aufbereitetes Altholz eines dafür spezialisierten Betriebes zugekauft, damit es zum vorhandenen Altbestand ein harmonisches Bild ergibt. Das Haus wurde innen vorwiegend mit Lehm verputzt, sodass die unebene Wandstruktur erhalten blieb. Die Einrichtung besteht weitgehend aus wertvollen Antiquitäten, die bei Interesse mitverkauft werden könnten (Kosten extra zu bezahlen). Alle Restaurierungs- und Renovierungsarbeiten wurden Ende 2016 abgeschlossen. Da nur Fachbetriebe beschäftigt wurden, gibt es für alle handwerklichen Gewerke Garantien seitens der beauftragten Firmen.
Alle Gartenbereiche, sowie der in sich abgeschlossene Innenhof werden über eine automatische Beregnungsanlage bewässert.
Das Anwesen ist mit einer uneinsehbaren Holzzauneinfriedung von 2,5 m Höhe und einem automatischen Einfahrtstor versehen.
Ebenfalls vorhanden ist eine erst kürzlich eingebaute Alarmanlage.

monatliche Betriebskosten Strom und Heizung ca. Euro 355,-
Für Restmüll und Papiermüll halbjährlich                Euro   94,86

Verkehrsanbindung:
Busstation fußläufig erreichbar (nach Gaweinstal oder Wien).
A 5 Autobahn (nach Wien 18 Min)
Infrastruktur:
nur 3 Km entfernt ist der Ort Gaweinstal mit Kindergarten, Schule, Ärzten, Apotheke und Einkaufsmöglichkeiten.
zahlreiche Heurige und Gaststätten
Kurort Bad Pirawarth nur 6 Km entfernt.
Viele Freizeitmöglichkeiten in den Weinbergen wie Wandern, Radfahren, Reiten u.v. mehr.

Kaufpreis: € 548.000,-
Das Angebot ist freibleibend und unverbindlich, Irrtum und Fehler vorbehalten.

Es besteht auch die Möglichkeit das gesamte Grundstück (Bauplatz 1 und Bauplatz 2) mit einem Stadl zu kaufen - siehe Obj.Nr. 1760/90.

Für weitere Fragen und/oder einen Besichtigungstermin steht Ihnen gerne Herr Ing. Anton Eibensteiner per E-Mail unter ae@vitales-wohnen.at zur Verfügung.
Wir sind als Doppelmakler tätig, d.h. wir vertreten sowohl Verkäufer als auch Käufer.

Kauf zzgl. Kaufnebenkosten gem. Merkblatt der Fachgruppe der Immobilien- und Vermögenstreuhänder.
Energiedaten: 85,4kWh/m²a;fGEE: 1,25

 

 

Energiedaten:
 Energieausweis: liegt vor
 HWB: 85,40

Lage und Verkehrsanbindung

Sonnige Lage, Grünlage

Entfernungen

Einkaufsmöglichkeit
500 m
Kindergarten
500 m
Volksschule
500 m

Grundrisse

Lageplan

Inhalt wird geladen
Preise
Provision
3.0% plus 20.0% USt.
Fakten
Objekttyp
Haus
Gesamtfläche
250 m²
Wohnfläche
250 m²
Grundfläche
1.368 m²
Toiletten
2
Status
verfügbar
Energieeffizienz
Energieausweisart
Energiebedarfsausweis
Endenergiebedarf
85,40 kWh/(m²a)
HWB
85,40 kWh/(m²a)
FGEE
1,25
Anton Eibensteiner